LKAB har tecknat avtal med EuroMining

21 februari 2019
Från vänster Lars Almgrund, styrelseledamot och delägare EuroMining, Peter Segerstedt, avdelningschef på LKAB:s samhällsomvandling i Malmberget, Ulf Hansson, senior projektledare transaktioner på LKAB:s samhällsomvandling i Malmberget, Tommy Gustafsson styrelseledamot och delägare EuroMining och Lars-Åke Augustsson styrelseledamot och delägare EuroMining.

LKAB och EuroMining har idag, torsdag 21 februari, tecknat ett avtal som innebär att LKAB köper den detaljplanerade marken Bryggeribacken av EuroMining.

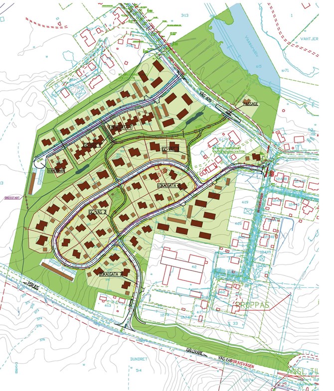
Bryggeribacken är ett attraktivt område beläget på Andra sidan i Gällivare. Markområdets storlek är 99 000 kvm med färdig detaljplan för 50 småhus och 56 lägenheter.

EuroMining köpte Bryggeribacken 2011 med intentionen att vara en del av samhällsomvandlingen som då blev mer påtaglig.

– Nu ska vi istället fokusera på vår kärnverksamhet, men genom försäljningen av Bryggeribacken är vi ändå delaktiga i samhällsomvandlingen och våra intentioner fullföljs. Det känns bra att sälja till LKAB, då vet vi att området bebyggs, säger Lars-Åke Augustsson, styrelseledamot och delägare EuroMining.

– Vi har haft bra diskussioner med EuroMining och Bryggeribacken är ett förvärv som kompletterar LKAB:s behov av attraktiv mark för att genomföra samhällsomvandlingen. Vi kan därmed fortsätta att erbjuda de som behöver flytta från Malmberget bra och attraktiva boendemiljöer, säger Peter Segerstedt, avdelningschef på LKAB:s samhällsomvandling i Malmberget.